m.shhayi.com
磁翻板液位計是一種工業生產中非常常見的一種液位測量儀表,測量結果直觀,維護方便,尤其在罐區有著大量的使用量。磁翻板液位的安裝方式有側裝式和頂裝式兩種形式,具體要根據測量現場的要求來予以確定。

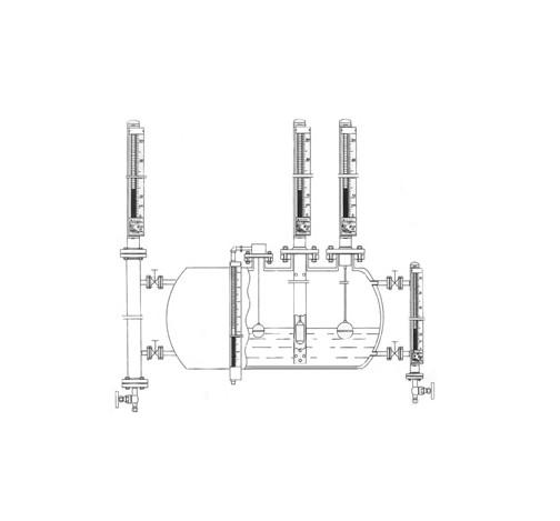
頂裝式磁翻板液位計主要由本體部分、就地指示器、遠傳變送器及上、下限報警器等幾部分組成。
頂裝式磁翻板位計直接安裝于容器頂部,通過浮球隨液面(或界面)的上下移動帶動磁性連桿上下移動,由磁性連桿內的磁鋼利用磁耦合原理驅動磁性翻板指示器,用紅藍兩色(液紅氣藍)明顯直觀地指示出工藝容器內的液位或界位,可遠距離傳送和實現自動控制。
頂裝式磁翻板位計選型及測量時需要考慮的參數有:
1.介質類型、溫度、壓力、腐蝕性;
2.材質要求;
3.法蘭中心距、法蘭規格;
4.是否要求4-20mA遠傳輸出;
5.是否要求帶上下限報警開關、幾個開關等。
這些參數都是在安裝設計初期就需要予以確定的,因為只有根據業主提供的工作參數,廠家才能夠針對此參數制作出較合理,測量效果也較好的磁翻板液位來。
安裝
(1)安裝前請仔細觀察浮子表面是否光滑平整,確信浮子表面無凹陷等損壞現象。注意浮子表面的安裝箭頭方向,不能裝反。
(2)浮子不參加裝置掃線和試壓。
(3)儀表安裝時,需保證儀表的筒體與水平面垂直。
(4)儀表在投入運行時,應先打開上接口法蘭閥門,然后緩慢開啟下接口法蘭閥門,以免裝置內的受壓介質快速進入筒體,使浮子急速上升造成現場指示跟蹤不靈。
(5)儀表在使用及存放時,需保證環境溫度不致使筒體內介質凍結。位計使用過程中,如果輸出信號產生頻繁擾動或有干擾脈沖,就要檢查信號電纜屏蔽層是否可靠接地,工作接是電阻能否滿足要求。倘若干擾仍然沒有完全消除,可用信號隔離器來解決。
使用
1.遠傳變送器部分的調試:有兩種方式:一是在裝置下撥動浮子,使之模仿液位的較低點和較高點;另一種是直接在裝置上調節液位的較低點和較高點。由于靠前種方式容易產生不可估算的誤差,我們推薦采取直接在裝置上調試液位的較高點和較低點。
2.儀表調試時,先模仿液位的較低點并使之與就地顯示部分的刻度對應起來,同時調節下限電位器,使輸出為4mA,然后模仿液位的較高點調節上限電位器,并使輸出為20 mA
3.按上述第二步反復調整幾次,直至液位輸出電流與液位的實際值的誤差在允許的范圍內,即可認為遠傳部分調試完。頂裝式磁翻板位計使用時尤其要注意,千萬不要用強磁鐵在連通管外上下拉動浮子進行檢查.否則會導致磁性浮子磁化而改變極性,甚至會使浮子磁性減弱,以致難以正常工作。用本安型液位計時,尤其要注意液位計與安全柵的阻抗是否匹配。由于此液位計電源電壓為14.5-36VDC,小于一般變送器的14.5-45VDC,故負載較大時不能正常工作。
頂裝式磁翻板下限報警器的調試可以在就地顯示或遠傳部分調試完畢的基礎上進行,可用 就地顯示或遠傳部分的指示為參照,按需要調節報警器的定位螺栓,并使報警器的報警位置刻度對齊就地顯示刻度或符合遠傳變送器報警液位。液位計現場投用時,要特別注意應先打開上部閘閥,后打開下部閘閥。玻璃管液位計這是由于液位計連通管的底部裝有保護浮子的止推彈簧,否則,大差壓的作用可能撞碎浮子導致液位計無法使用。液位計投用一段時間后,出現浮子難以浮起且浮子移動不靈活的情況。這基本上是因為磁性浮子上沾有鐵屑或其他污物造成的。可先排空介質,再取出浮子,消除磁性浮子上沾有的鐵屑或其他污物即可。